Skip to content
NRC
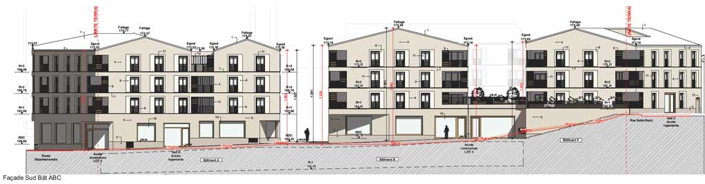
Résidence le Castellan
Logements sociaux
Roquevaire
Construction de 60 logements + commerces
Maître
d'ouvrage
Logis Mediterranée
Mission
loi MOP de base
Surface
6 000 m2 SDP dont 1800 m2 commerces
Coût
8 000 000 € H.T.
Autres
Projets
LOGEMENT
ÉQUIPEMENT
SANTÉ
TERTIAIRE
RECOMPOSITION
URBAINE
Agence
Actualités
Logements
Équipements
Santé
Tertiaire
Recomposition urbaine
Contact
04 91 31 41 13
contact@nrc-architecture.com
Linkedin
Facebook